Тяжелые ковочные краны: типы, принцип работы и особенности применения
Тяжелые ковочные краны — это специализированные мостовые краны, которые применяются для подъёма, переворота и точного позиционирования крупных поковок в кузнечных и металлургических цехах. Благодаря высокой грузоподъёмности, устойчивости к экстремальным температурам и ударопрочности, они занимают ключевое место в тяжёлой промышленности.
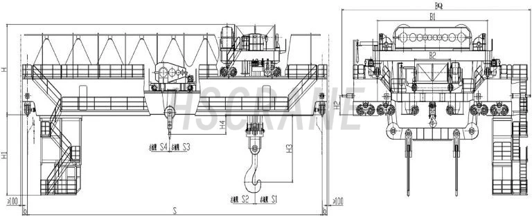
Типы тяжелых ковочных кранов
Прежде всего, можно выделить два основных типа конструкций:
-
Двухбалочные двухрельсовые краны с одной тележкой — грузоподъёмность 50–500 т, пролет рельсов 8–35 м. Такие краны идеально подходят для малых и средних кузнечных цехов.
-
Трехбалочные четырёхрельсовые краны с двумя тележками — грузоподъёмность до 800 т. Они разработаны специально для крупных гидравлических прессов и штамповочных линий.
Таким образом, выбор конструкции напрямую зависит от планировки цеха и мощности используемого оборудования.
Принцип работы тяжелого ковочного крана
Во время эксплуатации тяжелые ковочные краны используют основной и вспомогательный крюки для подъема заготовки. Далее угол наклона регулируется с помощью переворачивающей траверсы, после чего заготовка точно размещается на прессе. Кроме того, краны оснащены амортизаторами и аварийными тормозами, что гарантирует безопасное выполнение операций.
Применение тяжелых ковочных кранов
-
Свободная ковка: подъём и перемещение слитков и заготовок (≤600°C), многопозиционная обработка совместно с кузнечным молотом.
-
Линия штамповки: транспортировка полуфабрикатов и пресс-форм (1–50 т) с высокой точностью позиционирования (±3 мм).
-
Кольцевой прокат: обработка заготовок диаметром до 8 м с использованием C-образных крюков или специальных захватов.
-
Специальные сплавы: работа с титаном и жаропрочными сплавами при помощи антизагрязнительных траверс.
-
Атомная энергетика и аэрокосмическая отрасль: подъем цилиндров, элементов шасси и турбинных дисков.
-
Металлургия: перемещение ковшей и заготовок непрерывного литья (≥800°C) с усиленными жаропрочными крюками.
Особенности тяжелых ковочных кранов
-
Системы безопасности: многоуровневая защита от перегрузки, механические противоударные устройства, датчики нагрузки. Краны демонстрируют стабильность при 1,4× статической и 1,2× динамической нагрузке в соответствии с ISO 4301.
-
Оптимизированная конструкция моста: трёхбалочная четырёхрельсовая схема с коробчатой структурой, усиленной широкими фланцами. Благодаря этому прочность повышается на 30%, а жёсткость конструкции превышает 1/800, что снижает вибрации и деформации.
-
Интеллектуальная система переворота заготовок: гидравлическое сервоуправление с диапазоном 0–90° (точность ±1°), ограничитель крутящего момента и синхронизация с процессом ковки.
-
Симуляция и верификация: использование CAE-технологий для анализа напряжений, кинематики и усталостной прочности.
-
Модульная архитектура: болтовые и шарнирные соединения, которые позволяют быстро выполнять разборку и обслуживание.



