Мостовые краны с электромагнитной балкой разработаны специально для подъёма и транспортировки как чёрных, так и цветных металлов. По сути, они идеально подходят для работы на металлоперерабатывающих предприятиях, в сталелитейных цехах, на складах и в доках, где необходимо быстро и надёжно перемещать металлические изделия.
Надёжная конструкция и безопасность
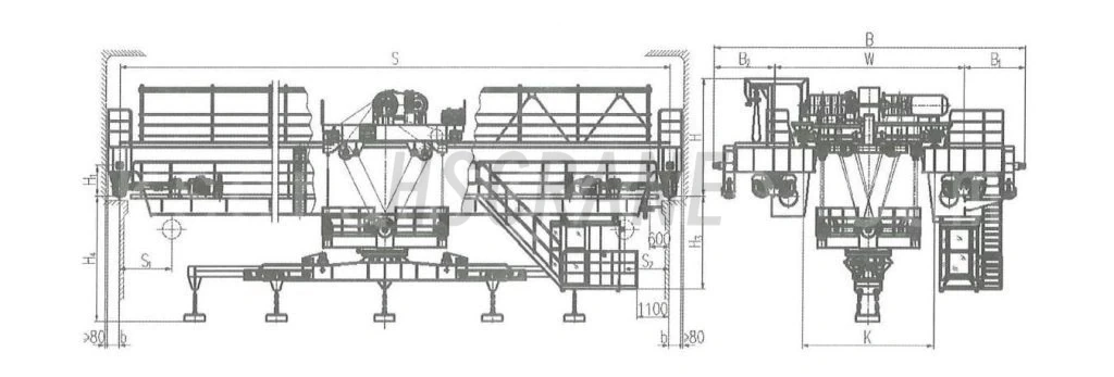
Конструкция крана включает в себя мостовую балку с электромагнитом, который обеспечивает надёжный и быстрый захват металла. Кроме того, краны оснащены высококачественными тормозными и защитными системами, что гарантирует максимальную безопасность в работе.
Высокая эффективность и производительность
Среди основных преимуществ — высокая грузоподъёмность, стабильная и точная работа, а также значительное снижение трудозатрат. Всё это, в свою очередь, повышает эффективность производственных процессов. Благодаря своей надёжности и долговечности, эти краны могут использоваться в любых условиях, где требуется работа с тяжёлыми металлическими грузами.
Использование таких кранов позволяет существенно повысить производительность и безопасность в металлургической отрасли.
Мостовые краны с электромагнитной балкой — основные особенности
Мостовые краны с электромагнитной балкой с магнитным спредером разработаны по национальным стандартам. Они оснащены современными компонентами и электронными системами управления. Дизайн элегантный, параметры рациональные, производительность высокая, а обслуживание простое.
Преимущества конструкции
Краны имеют прочные сварные коробчатые балки. Концевые тележки фиксируются болтами для упрощения транспортировки и монтажа. Конструкция надёжная, но легко собирается.
Стандартизация и энергоэффективность
Компоненты стандартизированы и серийны. Все двигатели — энергосберегающие модели YZR. Это снижает потребление энергии во время работы.
Безопасность
Краны оборудованы устройствами удержания при отключении питания и современными электронными системами управления. Используются электромагниты постоянного тока, гидравлические тормоза, буферы, защитные кожухи для механизмов, а также многочисленные защитные устройства и монтажные площадки.
Управление и комфорт
Краны управляются дистанционно или из кабины. Кабины могут оснащаться кондиционерами и охладителями воздуха. Индивидуальные ограничители позволяют адаптировать кран под конкретные задачи и обеспечивают максимальную эффективность.





